DHH inkl. Keller auf ruhig gelegenem Grundstück direkt in Gröbenzell – Bauantrag bereits genehmigt!
82194 Gröbenzell, Doppelhaushälfte zum Kauf
Kontaktdaten
-
NameHerr Alexander Heinzinger
-
AdressePeter-Dörfler-Straße 30
Augsburg Augsburg -
E-Mail Zentrale
-
Tel. Durchwahl
Objektdaten
-
Objekt-IDAHI2374AH
-
ObjekttypenDoppelhaushälfte, Haus
-
Adresse82194 Gröbenzell
-
Etagen im Haus2
-
Wohnfläche ca.111 m²
-
Grundstück ca.335 m²
-
Zimmer4
-
Schlafzimmer2
-
Badezimmer1
-
Separate WC1
-
HeizungsartFußbodenheizung
-
Wesentlicher EnergieträgerLuft/Wasser Wärmepumpe
-
ZustandErstbezug
-
Stellplätze gesamt1
-
Garagenstellplatz1 Stellplatz
-
Käuferprovision1,79% inkl. MwSt. aus dem Grundstückskaufpreis
-
Kaufpreis949.000 EUR
Ausstattung / Merkmale
- ✓ Keller
- ✓ Separates WC
Objektbeschreibung
Beschreibung
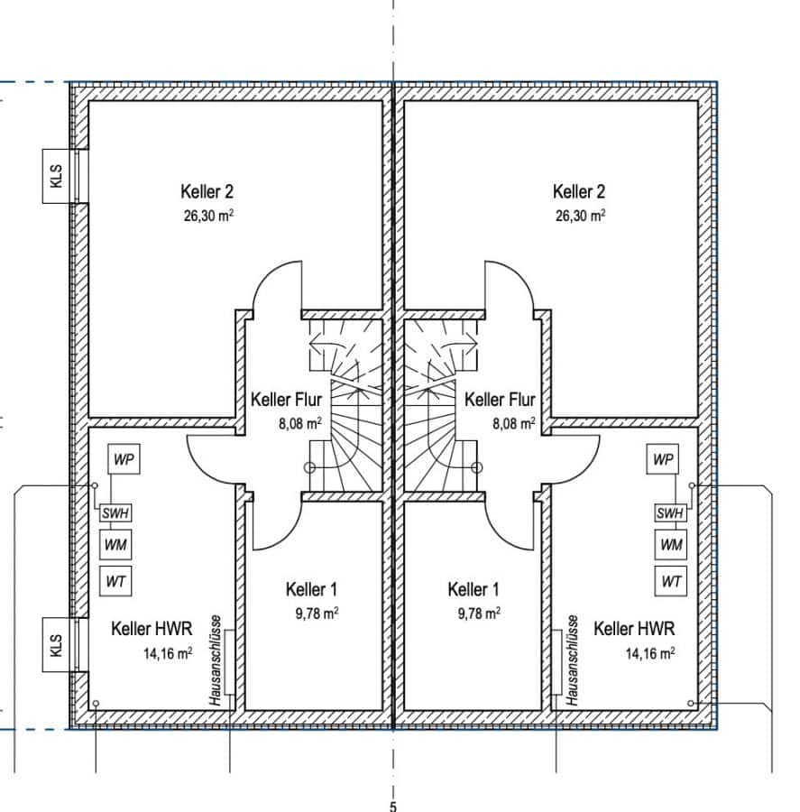
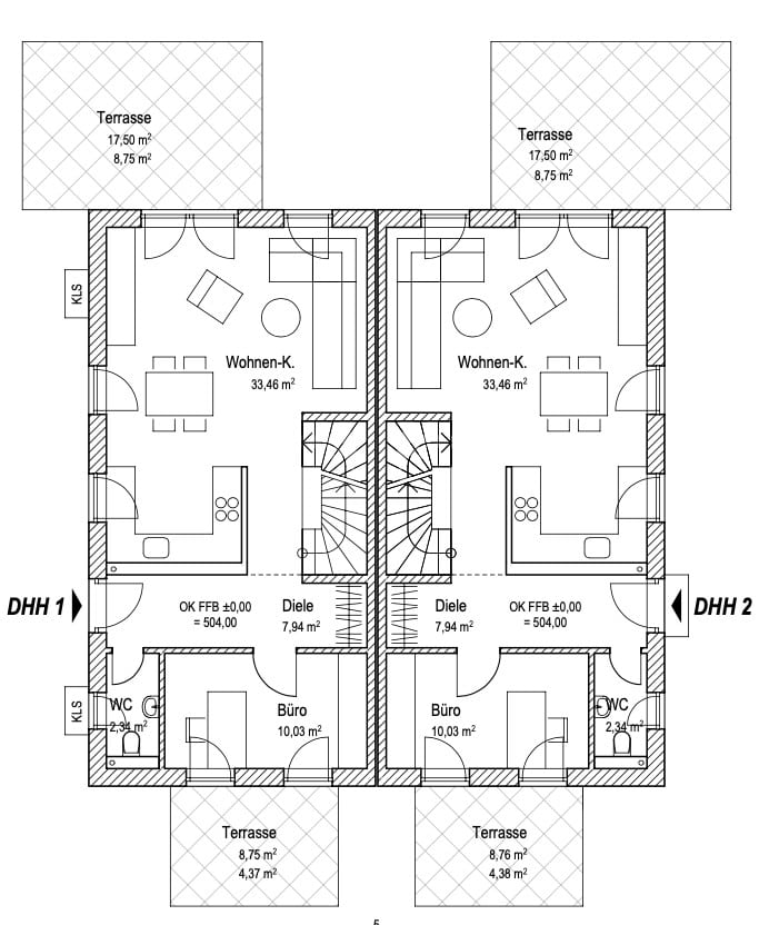
Moderne Architektur trifft zeitlose Eleganz und das auf zwei Ebenen. Dabei sorgen die großen Fenster für viel Licht in Ihrem neuen Traumhaus. Auf Ihrer zukünftigen Wohnebene im Erdgeschoss finden Sie alles, was Sie sich vorgestellt haben, ein schönes geräumiges Wohn-Ess-Zimmer mit einem herrlichen Blick in Ihren Garten und eine Küche, die zum gemeinsamen Kochen einlädt. Das Büro und das Gäste WC runden das Raumangebot auf dieser Ebene ab. Das zweite Geschoss bietet Platz für die Kinder, die Eltern, zum Entspannen, zum Arbeiten oder auch für Ihr Hobby. Im Angebot ist ebenfalls ein Keller enthalten, der über eine großzügige Aufteilung mit drei Räumen zzgl. dem Hauswirtschaftsraum verfügt.
Sollte Sie Anpassungswünsche bezogen auf die Grundrisse als auch an die Größe des Hauses haben, so sprechen Sie uns gerne darauf an. Das Bauvorhaben ist zwar bereits genehmigt, es können aber trotzdem Veränderungen durch geführt werden. Setzen Sie sich bei Bedarf mit unseren Architekten zusammen, um das Haus an Ihre Vorstellungen anpassen zu lassen.
Schon in der Grundausstattung dabei:
- Massive Bauweise
- Freizeit "Plus" Paket
- 3-Scheibenverglasung
- Fussbodenheizung
- Handtuchheizkörper
- KfW55 inkl. zentralem Lüftungssystem
- Luft- Wärmepumpe
- Fliesen z.B. von Villeroy & Boch
- Aussenwasserhahn (frostsicher)
- Keller
u.v.m...
Folgend der Hinweis auf aktuelle Förderprogramme:
++BayernLabo - Bayerisches Wohnungsbauprogramm++
https://bayernlabo.de/eigenwohnraumfoerderung/eigenheimfinanzierung/bayerisches-wohnungsbauprogramm
++KfW Förderung++
https://www.kfw.de/inlandsfoerderung/Privatpersonen/Neubau/
Ausstattung
Das Haus wird von Wand-MassivHaus in Massiv-Bauweise erstellt und im Schlüsselfertigen Zustand an Sie übergeben. Lediglich die Bodenbeläge (außer Bad und WC) und die Malerarbeiten müssen Sie in Eigenleistung erstellen oder an uns vergeben.
Genaueres können Sie unserer Bau- u. Leistungsbeschreibung entnehmen und/oder wir stehen Ihnen im persönlichen Gespräch zur Verfügung.
Rufen Sie uns einfach an, wir freuen uns auf Sie!
Die Bauherren-Schutz-Pakete sind im Kaufpreis eines Hauses enthalten:
- BAULEISTUNGSVERSICHERUNG
Sie schützt Bauherrn und Bauunternehmer vor unvorhersehbaren Schäden während des Bauvorganges, die z. B. durch höhere Gewalt (Hochwasser, Sturm), Vandalismus,
Konstruktions- und Materialfehler, Fahrlässigkeit verursacht werden.
- FEUERROHBAUVERSICHERUNG
Die Versicherung des Feuerrisikos erfolgt bei uns über die Bauleistungsversicherung mit Ergänzungsdeckung für Feuerrisiken. Damit sind durch die Bauleistungsversicherung Schäden, wie z. B. Feuer (Brand, Blitzschlag, Explosion) sowie Schäden durch bemannte oder unbemannte Flugkörper, abgedeckt.
- 5 Jahre Gewährleistung nach BGB
- BAUGEWÄHRLEISTUNGSVERSICHERUNG 100.000,00 EURO
- BAUHERRENHAFTPFLICHT- VERSICHERUNG & - BAUBEGLEITENDE QUALITÄTSPRÜFUNG UND DIE WAND-MASSIVHAUS SERVICE- GARANTIE
Das Wand-MassivHaus Qualitäts-Schutz-Paket mit
- Erstellung eines Baugrundgutachtens
- Energiesparnachweis und Energieausweis
- Blower-Door Test
- VQC, TÜV oder DEKRA (nach Wahl des Auftragnehmers) überwachte u. geprüfte Bauausführung
- exakte Statikberechnung Ihres Hauses
Das Wand-MassivHaus Service-Schutz-Paket mit
- Individuelle Gestaltung Ihres Hauses möglich durch unsere hauseigene Architekturabteilung
- Verwendung von Markenprodukten
- Bauzeitgarantie
- Such-Service für ein Baugrundstück
- Kostenkontrolle bei der Planung durch Festpreis- und Fertigstellungsgarantie
- Hausakte/Dokumentation
Alle Leistungen beziehen sich auf ein ausgebautes Haus.
Sonstiges
Der hier angebotene Preis beinhaltet den Kaufpreis für eine ausgebaute Doppelhaushälfte inkl. Keller & Grundstück zzgl. Erwerbs- und Baunebenkosten.
Bei Interesse an diesem Angebot kontaktieren Sie bitte:
Ansprechpartner: A. Heinzinger / Vertriebspartner Wand-MassivHaus GmbH
Gerne vereinbaren wir mit Ihnen einen persönlichen Besichtigungstermin für das Grundstück, sowie ein persönliches Gespräch in unserem Büro.
So können Sie sich das beste Bild von unserem Angebot machen.
Alle genannten Angaben zu dem Baugrundstück beruhen auf Informationen durch den Eigentümer. Das ImmoQuartier22 sowie die Wand-MassivHaus GmbH mit allen angeschlossenen Maklern und Vertriebspartnern übernehmen keine Haftung für fehlerhafte Fremdaussagen. Irrtum und Zwischenverkauf müssen wir uns daher vorbehalten.
Für den Nachweis bzw. die Vermittlung des Baugrundstücks entsteht eine Maklercourtage von 1,79% inkl. MwSt. aus dem Grundstückskaufpreis.
Das Haus an sich, ist selbstverständlich provisionsfrei.
Weitere interessante Hausvarianten finden Sie unter http://www.ImmoQuartier22.de
Dieses Expose dient der Vorabinformation. Vertragsgrundlage ist der geschlossene Bauwerkvertrag, sowie die in diesem enthaltenen Pläne. Die Hausabbildungen und Grundrisse beinhalten Sonderwünsche. Die Grundrisszeichnungen haben keinen Größenbezug zueinander.
Die Einrichtungsgegenstände und Bodenbeläge (außer Bodenbeläge in Bad und WC) sind nicht in unseren Leistungen enthalten und müssen, wenn gewünscht, extra bestellt werden.
Änderungen bleiben vorbehalten.
Lage
Die Gelegenheit direkt in Gröbenzell - die Lage wird Sie begeistert!!
Sie suchen ein neues Zuhause, das die perfekte Balance zwischen einer ruhigen Lage und einer guten Anbindung nach München mitbringt?? Dann sind Sie hier genau richtig!
Wir bieten Ihnen hier die Gelegenheit, sich eine von insgesamt 3 Einheiten auf einem wunderbar gelegenen Grundstück direkt in Gröbenzell zu sichern. Das insgesamt 1150qm große Grundstück wird in drei Einheiten aufgeteilt und bietet Platz für ein freistehendes Einfamilienhaus und zwei Doppelhaushälften.
Ein genehmigter Bauantrag liegt bereits vor, somit können Sie direkt mit dem Bau des Hauses starten. Das spart Zeit und sorgt für zusätzliche Sicherheit!
Die Gemeinde Gröbenzell befindet sich westlich von München und befindet sich in direkter Nachbarschaft zu Puchheim und Olching.
Einkaufsmöglichkeiten, Schulen, Kindergärten, Ärzte und Restaurants befinden sich nur wenige Minuten mit dem Auto vom Grundstück entfernt.
Der S-Bahnhof, der Sie direkt nach München bringt ist mit dem Auto oder Bus in nur wenigen Minuten zu erreichen. Die Bushaltestelle hierzu liegt nur wenige Schritte vom Grundstück entfernt.
Näheres erfahren Sie von Ihrem Ansprechpartner: A. Heinzinger
Sollten Sie Unterstützung bei der Finanzierung benötigen, so lassen Sie es uns gerne wissen. Wir helfen Ihnen hier gerne weiter und vermitteln Ihnen einen kompetenten Baufinanzierer aus der Region.
Das Objekt hat Ihr Interesse geweckt, Sie möchten aber vorab noch eine bestehende Immobilie veräußern? Wir stehen Ihnen auch hier gerne zur Seite, um auch Ihre Immobilie den passenden Käufer zu finden.
82194 Gröbenzell, Deutschland (auf Google Maps ansehen)














