Neubau – DHH auf großem Grundstück in Gernlinden in A+ / wenige Gehminuten von S-Bahn entfernt!
82216 Maisach / Gernlinden, Doppelhaushälfte zum Kauf
Kontaktdaten
-
NameHerr Alexander Heinzinger
-
FirmaImmoQuartier22
-
AdressePeter-Dörfler-Straße 30
86199 Augsburg -
E-Mail Zentrale
-
E-Mail Direkt
-
Tel. Zentrale
-
Website
Objektdaten
-
Objekt-IDAHI25192AH
-
ObjekttypenDoppelhaushälfte, Haus
-
Adresse82216 Maisach / Gernlinden
-
Wohnfläche ca.136 m²
-
Grundstück ca.403 m²
-
Zimmer5
-
Schlafzimmer4
-
Badezimmer1
-
Separate WC1
-
Terrassen1
-
HeizungsartFußbodenheizung
-
Wesentlicher EnergieträgerLuft/Wasser Wärmepumpe
-
Baujahr2026
-
Zustandprojektiert
-
Stellplätze gesamt1
-
Garagenstellplatz1 Stellplatz
-
Käuferprovision3,57 % inkl. MwSt. auf den Grundstückskaufpreis. Das Haus ist selbstverständlich provisionsfrei
-
Kaufpreis739.000 EUR
Ausstattung / Merkmale
- ✓ Kein Keller
- ✓ Separates WC
- ✓ Terrasse
Objektbeschreibung
Beschreibung
Massiv gebaute Doppelhaushälfte mit 18 monatiger Festpreisbindung!
Unser Konzept:
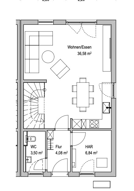
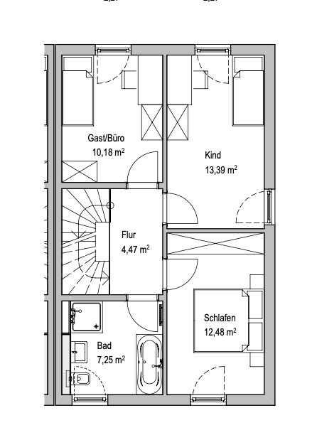
Modernes Wohnen auf drei Ebenen. Die Wohnebene mit dem großzügigen Wohn-Ess-Bereich sowie die Küche finden Sie im Erdgeschoss. Dieses wird ergänzt durch den Hausanschlussraum. Wie Sie die zweite Ebene mit drei Zimmern und Ihrem Bad nutzen möchten, dass entscheiden Sie selbst. Im Dachgeschoss befindet sich Ihre dritte Wohnebene. An dieser Stelle können Sie sich voll entfalten, ob Arbeitsbereich, Gästebereich oder ein kleines Apartment für die großen Kinder, Ihnen stehen alle Optionen offen.
Gerne bauen wir Ihnen dieses Haus auch mit Keller!
- EFFIZIENZHAUS 55, 40, oder 40Plus ebenfalls auf Wunsch möglich. Sprechen Sie uns einfach drauf an!
Eine Bauvoranfrage wurde bereits gestellt und auch genehmigt. So haben Sie volle Sicherheit bei der Umsetzung Ihres neuen Eigenheimes!
Schon in der Grundausstattung:
- dezentrales Lüftungssystem
- Massive Bauweise
- Freizeit "Plus" Paket
- 3-Scheibenverglasung
- Fussbodenheizung
- Handtuchheizkörper
- Luft- Wärmepumpe
- Fliesen z.B. von Villeroy & Boch
- Aussenwasserhahn (frostsicher)
- großer Wohnbereich
- Gästezimmer
- Studio
- Garage
u.v.m...
Ein genehmigte Vorbescheid liegt bereits vor und bietet Ihnen volle Sicherheit bei der Umsetzung des Bauvorhabens.
Ausstattung
Das Haus wird von Wand-MassivHaus in Massiv-Bauweise erstellt und im Schlüsselfertigen Zustand an Sie übergeben. Lediglich die Bodenbeläge (außer Bad und WC) und die Malerarbeiten müssen Sie in Eigenleistung erstellen oder an uns vergeben.
Genaueres können Sie unserer Bau- u. Leistungsbeschreibung entnehmen und/oder wir stehen Ihnen im persönlichen Gespräch zur Verfügung.
Rufen Sie uns einfach an, wir freuen uns auf Sie!
Die Bauherren-Schutz-Pakete sind im Kaufpreis eines Hauses enthalten:
- BAULEISTUNGSVERSICHERUNG
Sie schützt Bauherrn und Bauunternehmer vor unvorhersehbaren Schäden während des Bauvorganges, die z. B. durch höhere Gewalt (Hochwasser, Sturm), Vandalismus,
Konstruktions- und Materialfehler, Fahrlässigkeit verursacht werden.
- FEUERROHBAUVERSICHERUNG
Die Versicherung des Feuerrisikos erfolgt bei uns über die Bauleistungsversicherung mit Ergänzungsdeckung für Feuerrisiken. Damit sind durch die Bauleistungsversicherung Schäden, wie z. B. Feuer (Brand, Blitzschlag, Explosion) sowie Schäden durch bemannte oder unbemannte Flugkörper, abgedeckt.
- 5 Jahre Gewährleistung nach BGB
- BAUGEWÄHRLEISTUNGSVERSICHERUNG 100.000,00 EURO
- BAUHERRENHAFTPFLICHT- VERSICHERUNG & - BAUBEGLEITENDE QUALITÄTSPRÜFUNG UND DIE WAND-MASSIVHAUS SERVICE- GARANTIE
Das Wand-MassivHaus Qualitäts-Schutz-Paket mit
- Erstellung eines Baugrundgutachtens
- Energiesparnachweis und Energieausweis
- Blower-Door Test
- VQC, TÜV oder DEKRA (nach Wahl des Auftragnehmers) überwachte u. geprüfte Bauausführung
- exakte Statikberechnung Ihres Hauses
Das Wand-MassivHaus Service-Schutz-Paket mit
- Individuelle Gestaltung Ihres Hauses möglich durch unsere hauseigene Architekturabteilung
- Verwendung von Markenprodukten
- Bauzeitgarantie
- Such-Service für ein Baugrundstück
- Kostenkontrolle bei der Planung durch Festpreis- und Fertigstellungsgarantie
- Hausakte/Dokumentation
Alle Leistungen beziehen sich auf ein ausgebautes Haus.
Sonstiges
Der hier angebotene Preis beinhaltet den Kaufpreis für eine ausgebaute Doppelhaushälfte "Salzburg" inkl. Grundstück & Garage zzgl. Erwerbs- und Baunebenkosten.
Bei Interesse an diesem Angebot kontaktieren Sie bitte:
Ansprechpartner: A. Heinzinger / Vertriebspartner Wand-MassivHaus GmbH
Gerne vereinbaren wir mit Ihnen einen persönlichen Besichtigungstermin für das Grundstück, sowie ein persönliches Gespräch in unserem Büro.
So können Sie sich das beste Bild von unserem Angebot machen.
Wir weisen freundlich darauf hin, dass die von uns genannten Informationen und Angaben nur zur Vorabinformation bestimmt sind. Alle Angaben sind ohne Gewähr und basieren ausschließlich auf Informationen, die uns vom Auftraggeber/Bauamt zur Verfügung gestellt wurden. Wir übernehmen keine Gewähr für die Vollständigkeit, Richtigkeit und Aktualität dieser Angaben. Irrtum und Zwischenverkauf müssen wir uns daher vorbehalten. Irrtum und Zwischenverkauf müssen wir uns daher vorbehalten.
Für den Nachweis bzw. die Vermittlung des Baugrundstücks entsteht eine Maklercourtage von 3,57% inkl. MwSt. aus dem Grundstückskaufpreis.
Das Haus an sich, ist selbstverständlich provisionsfrei.
Weitere interessante Hausvarianten finden Sie unter https://www.immoquartier22.de/haustypen/
Dieses Expose dient der Vorabinformation. Vertragsgrundlage ist der geschlossene Bauwerkvertrag, sowie die in diesem enthaltenen Pläne. Die Hausabbildungen und Grundrisse beinhalten Sonderwünsche. Die Grundrisszeichnungen haben keinen Größenbezug zueinander.
Die Einrichtungsgegenstände und Bodenbeläge (außer Bodenbeläge in Bad und WC) sind nicht in unseren Leistungen enthalten und müssen, wenn gewünscht, extra bestellt werden.
Änderungen bleiben vorbehalten.
Lage
Sie suchen ein neues Zuhause im Münchner Westen, das sich in ruhiger und idyllischer Umgebung befindet und zudem verkehrsgünstig gelegen ist?
Dann sind Sie in Gernlinden genau richtig!
Die hier vorgestellte Doppelhaushälfte ist eine von insgesamt 2 Doppelhaushälften die auf einem Baugrundstück direkt in Gernlinden entstehen. Das Grundstück selber ist wunderbar ausgerichtet und liegt nur knapp 10 Gehminuten vom S-Bahnhof entfernt.
Die Gemeinde Gernlinden liegt im Landkreis Fürstenfeldbruck und zeichnet sich durch ihre idyllische Lage und gute Anbindung aus. Mit nur einer kurzen Fahrt erreichen Sie die Stadt München. Gernlinden bietet eine perfekte Mischung aus ländlichem Flair und urbaner Nähe. In unmittelbarer Umgebung finden Sie alle wichtigen Einrichtungen wie Einkaufsmöglichkeiten, Schulen und Freizeitangebote. Erleben Sie die Vorzüge des ruhigen Dorflebens und genießen Sie gleichzeitig die Annehmlichkeiten der nahen Großstadt.
Vom Grundstück aus erreichen Sie den S-Bahnhof in nur wenigen Gehminuten. Auch die Autobahn A8 erreichen Sie durch die in nur wenigen Minuten entfernte B471.
Näheres erfahren Sie von Ihrem Ansprechpartner: A. Heinzinger
Sollten Sie Unterstützung bei der Finanzierung benötigen, so lassen Sie es uns ebenfalls gerne wissen. Wir helfen Ihnen auch hier gerne weiter und vermitteln Ihnen einen kompetenten Baufinanzierer aus der Region.
Die dargestellte Position der Immobilie ist nur eine ungefähre Angabe.














